The Wanda Bathroom Design
primary colors
Vibe
Cost to Execute (MSRP)
$$$ ($205-274/sq ft)
We believe in our designs so much that we're offering this one for free! The Wanda bathroom is a playful, bold, and high-end bathroom design. This style is great for anyone who loves earthy yet fun colors. A gray slate-look floor tile combined with scalloped terracotta wall tile makes for a uniquely bold, boho bathroom. You can choose to spice up the room with an accent wall wallpaper, or keep with a solid paint color throughout. The hardware and fixtures are copper and brushed gold, to continue with the warm color scheme. This bathroom design is perfect for Bohemian, Eclectic, or Mid-Century homes.
This design download includes all the design and technical materials to execute The Wanda in a full bathroom and/or a half bathroom.
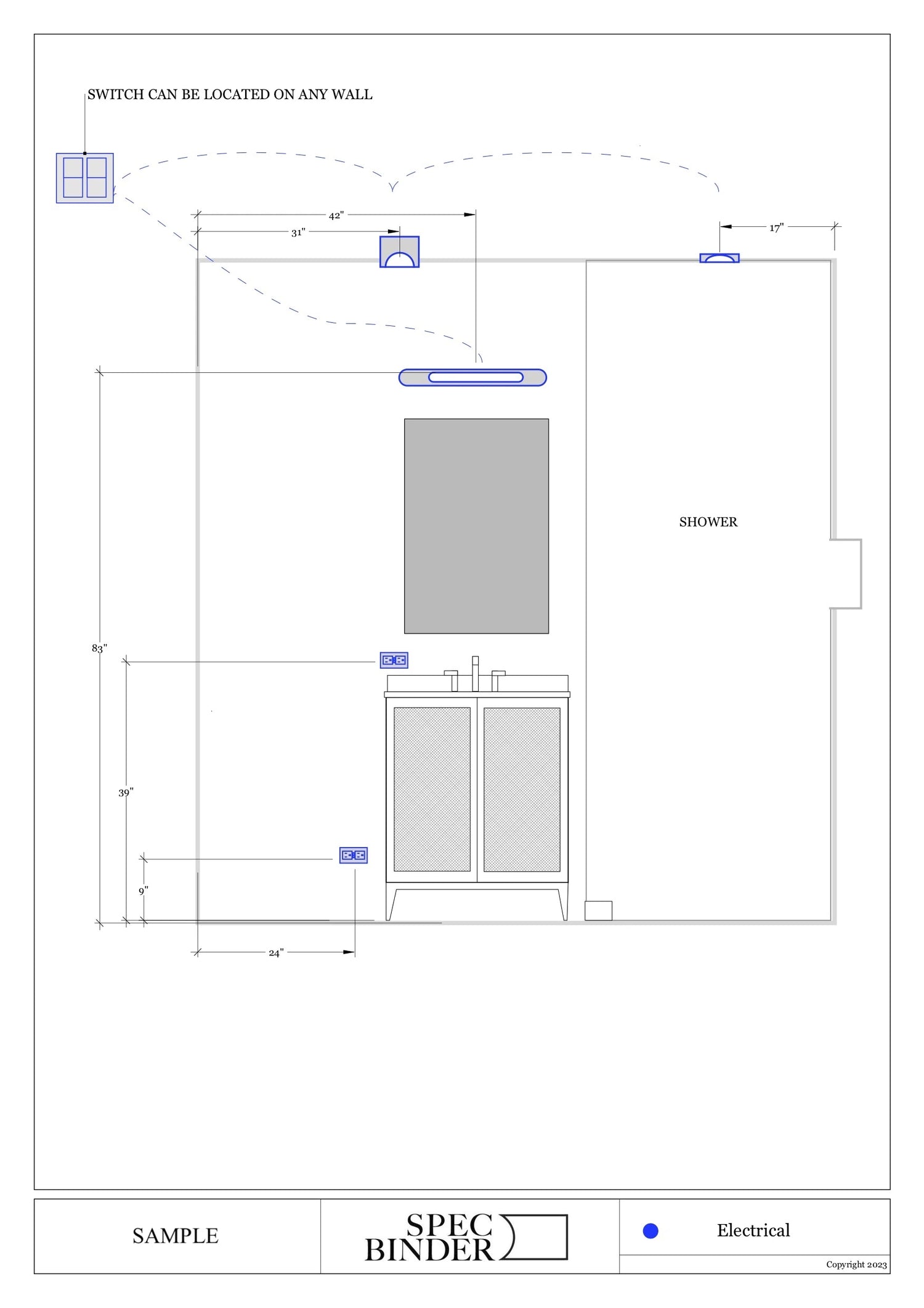
WHAT'S INCLUDED:
✓ Mood Board
✓ Design Brief
✓ Product Selections
✓ Editable Budget Document
✓ Color & Finish Palette
✓ Paint & Tile Schedule
✓ Wall Elevations (sub-contractor-specific installation sheets)
✓ 1-on-1 phone support session
- Regular price
-
$0.00 - Regular price
-
- Sale price
-
$0.00
Couldn't load pickup availability
Instant Download
30-minute design consultation
Secure Checkout















FAQs
I am a homeowner. Can I buy this or is my contractor supposed to do it for me?
Either, or. You are welcome to buy any design on our website and use it with your contractor. If your contractor signs up for our Pro plan, they will be able to give you a discount you can use when you make a purchase.
What does the cost to execute mean?
This is an estimate of what all the materials in the design will cost, per square foot. This pricing estimate does not include the cost of labor or material transportation. It also does not include any special pricing your contractor may be entitled to.
Providing your contractor with these documents will help them give you an accurate bid that includes materials and cost of labor.
How can I be sure this design will work in my specific space?
Spec Binder designs are specific to material finishes and therefore are adaptable to a variety of spaces regardless of layout. The designs can help a contractor accurately bid your job and can also be used during the construction and installation process.
If you have more questions about how the design will work in your space, schedule your free 30 minute consultation with our team of designers! We can help you envision the space, make additional product recommendations based on your taste, and swap out materials based on any restrictions in your space. You'll see a link to schedule time in your order confirmation email.
Can I change a part of the design or substitute a material selection?
Absolutely, you go right ahead a screw up our designs! Just kidding, of course you can make changes, and you won't even hurt our feelings. We suggest that you consult with us by phone, or with your contractor before you pull the trigger.

Home renovations are a mountain of tiny decisions.
And "hmmm" isn't a paint color. Get the answers you need to keep your project on time and on budget.

Job-site-ready documents that tell your team exactly where every tile should go.
Simplify things for your contractor. And for yourself. Get designer-curated finishing material decisions and rest easy knowing that your space will be stylish and cohesive.
Testimonials
Paul B, ContractorI feel like you guys gave me a formula that took me 15 years to figure out in one download.
Josh V, Architect"I can now make extra money by offering my clients design services, even though I'm not an interior designer."
Vanessa R, Customer"This simplified the renovation process beyond belief. I finally felt like I was in control."
Chris K, ContractorI could easily give this to my guys and walk away...

